案例介紹
內蒙古自治區(qū) - 赤峰市 - 阿魯科爾沁旗
西河新村
家是一個感情的港灣,家是一個靈魂的棲息地,家是一個精神的樂園。家就是你和你家人在一起的情感的全部 所以要舒適 溫馨 溫暖
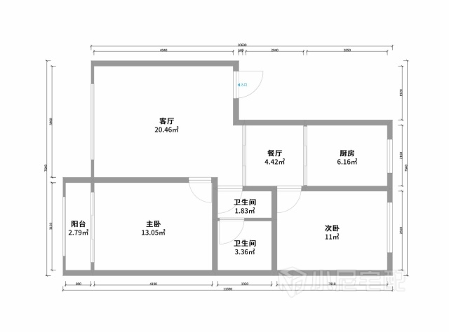
戶型圖








免費申請設計
設計師上門服務全程免費,禁止以任何形式收取費用。